Internship at Hardy Happle Architecture
Moosenmättle 7, 77709 Wolfach, Deutschland
This architecture office is specialized in rehabilitating old farms located in the Black Forest in Bade Wuttemberg. These farms are big buildings entirely constructed with wood. Often very old, the office works closely with the Denkmalpflege (monument preservation).
This field of architecture was completely new to me. It is a totally different approach to architecture from what I was used to.
First, architects have to study in details the building. This means drawing plans, facades and sections, very precisely. Every alteration of the wood has to be rendered in drawings, to the centimeter, therefore the process takes a long time.
Then, after a thorough research trough drawings and historic documentation the project can begin. An important dialogue between the Denkmalpflege and the architects take place before the approval of the project.
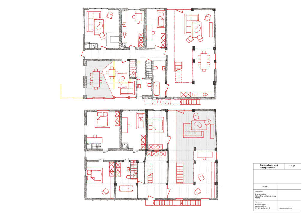
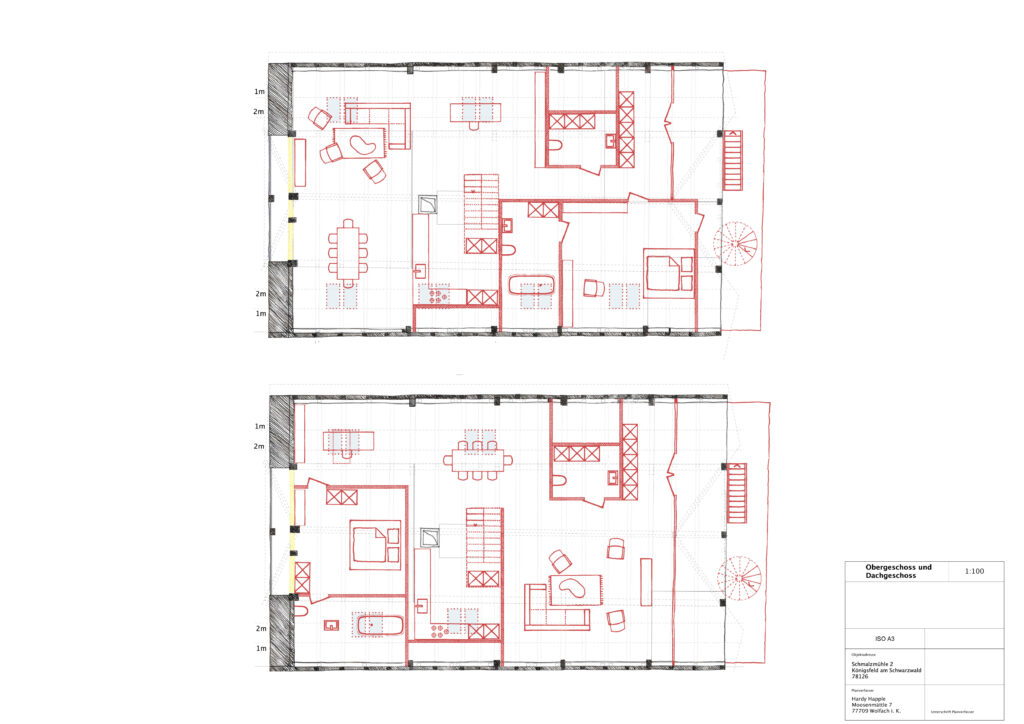
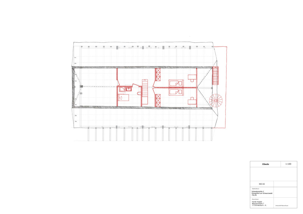
This farm used to be a old little mill. There is a little stream at the foot of the house, lined by the forest. It is composed of a farm and a stable, with horses, chickens and pigs. As every farm from the Black Forest the most important part of the building is the prominent roof, supported by a wooden structure. This structure allows a plan libre, walls can be moved and the building can be easily set up and down. The project is to completely rehabilitate the house and to make several apartments for a guest-house on the lower levels, as well as a separated loft on the highest part of the building.
The project is still in its infancy, the tedious and meticulous work of surveying and drawing is still in process.
Here you can see the first draft of the existing plans, and one of the facades, as well as design proposals.











