Museum Complex – Second Year – Individual Project
The project is to create a museum complex to revitalize the city of Teich through slow and eco-tourism. The aim is for artists to live and work on site, then to exhibit photographic reports of the works in situ. The Teich, located near the Bay of Arcachon and thus the Atlantic Ocean in the south west of France, relies mainly on tourism. Situated in a flood zone the use of stilts is unavoidable. The oyster huts, a typology typical from the Basin are one of the driving forces of the project. These are presented by the gable and are made of wood and tiles. The existing routes guided the project, the Leyre and the hiking trails.
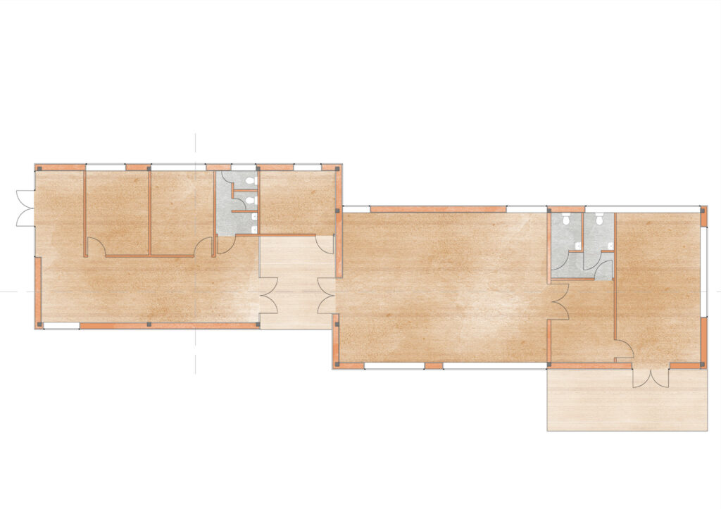
The program consists of a workshop, a reception/conference room, a restaurant, a gallery, and cabin-houses. The activities on site are forestry, tourism through the ornithological reserve. The city also benefits from a small port. The chosen land is located in the natural zone of the Local Plan of Urbanism, therefore the relationship with the natural area is a major stake in the project. The entrance to the ornithological park is at the edge of the land, and the plot benefits from a view of the port, the Leyre and the small beach of Teich.
All the buildings have a common formal typology. It uses a system of posts-beams and pilings, the posts are inside and visible only from within. The connection with the landscape is also essential, the goal being a light and minimally invasive implantation allowed by the stilts. The design branches off from existing alignments with a geometry induced by them.
The project is not just about building the museum. As explained above, the realization of a sculpture park was also to be taken into account. See Ground Plane 1/500. On the same principle as the museum complex, a minimal and light layout is made with a wooden footbridge. Playing with the topography of the site, it meanders up to the city. Landscaping work is to be foreseen.








